Słoneczne, dwupokojowe w dobrej cenie Praga-Północ

Mieszkanie na sprzedaż
720 000,00 PLN , Pow. 48,50 m2
Drukuj ofertę
Drukuj ofertę
Typ nieruchomości:
Mieszkanie
Powierzchnia:
48,50 m2
Typ transakcji:
sprzedaż
Liczba pokoi:
2
Lokalizacja:
Warszawa , Namysłowska
Piętro:
3 na 3
Numer oferty:
34964538548
Cena za m2:
14 845,36 PLN
Na sprzedaż ustawne, schludne i zadbane mieszkanie o powierzchni 47 m², położone na 3 piętrze na warszawskiej Pradze-Północ.

Lokal daje idealną możliwość aranżacji według własnych potrzeb lub pod inwestycję. Doskonała lokalizacja, świetna komunikacja z centrum oraz pełna infrastruktura miejska w zasięgu spaceru.Do mieszkania przynależy osobna komórka lokatorska.

Atuty lokalizacji:
- dogodny dojazd do centrum Warszawy
- sklepy, szkoły, przedszkola, przychodnie w bezpośrednim sąsiedztwie
- klimatyczna, historyczna część Pragi-Północ
- tereny zielone i rekreacyjne w okolicy (5 min spacerem do parku przy pl. Hallera)

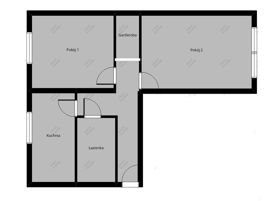
Układ mieszkania:
Przedpokój / korytarz główny
- centralna oś mieszkania, zapewniająca niezależny dostęp do wszystkich pomieszczeń
- na końcu korytarza obszerne pomieszczenie / garderoba
Pokój 1 (18 m²)
- największe pomieszczenie
- ustawny, możliwość wydzielenia strefy wypoczynkowej i jadalnianej
- obszerne okno z niewielkim balkonem wychodzące na południowy zachód doświetla całe pomieszczenie
Pokój 2 (ok. 12 m²)
- oddzielny, dobrze doświetlony przez duże okno wychodzące na północny wschód
- miejsce na łóżko, szafę i biurko
Kuchnia (8,5 m²)
- osobne widne pomieszczenie
- klasyczny układ z oknem
- możliwość pełnej modernizacji i połączenia z sąsiadującym pokojem
Łazienka (ok. 4 m²)
- kompaktowa, funkcjonalna
- możliwość zmiany układu pod nową aranżację

Nieprawidłowy adres E-mail