2 pokoje z oddzielną kuchnią Mokotów

Mieszkanie na sprzedaż
655 000,00 PLN , Pow. 39,70 m2
Drukuj ofertę
Drukuj ofertę
Typ nieruchomości:
Mieszkanie
Powierzchnia:
39,70 m2
Typ transakcji:
sprzedaż
Liczba pokoi:
2
Lokalizacja:
Warszawa Mokotów Sielce , Huculska
Rok budowy:
1975
Piętro:
9 na 10
Numer oferty:
34964537123
Cena za m2:
16 498,74 PLN
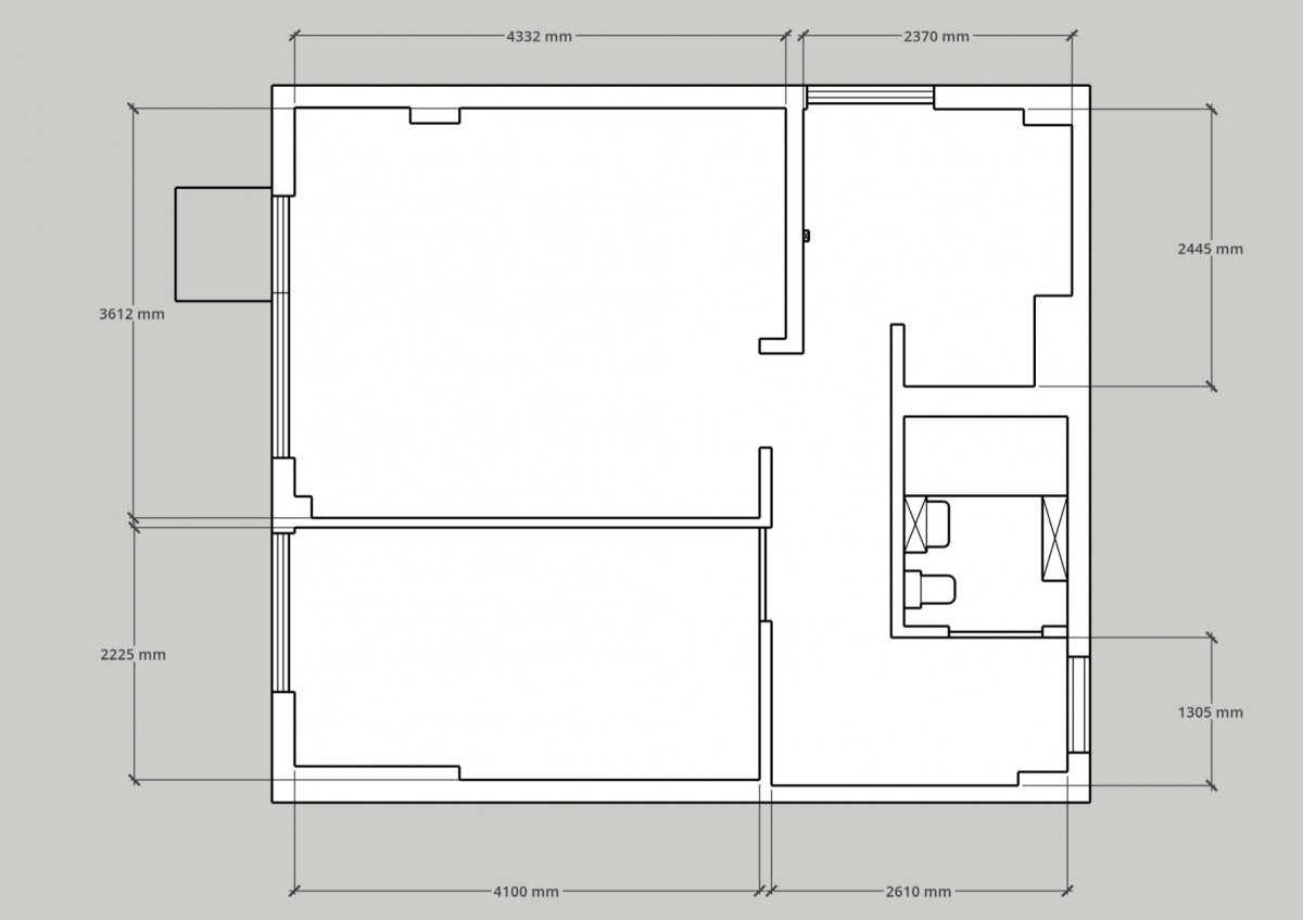
Na sprzedaż dwupokojowe mieszkanie o powierzchni 39,7 m² położone jest na 9. piętrze w dziesięciopiętrowym budynku z 1975 r.

Składa się z:
• salonu (z wyjściem na balkon),
• sypialni,
• częściowo widnej kuchni — idealnej do własnej aranżacji,
• łazienki,
• przedpokoju.

 STANDARD
Mieszkanie przeszło częściowy remont — zostały wymienione instalacje elektryczne, na ścianach położono świeżą gładź, wnętrze zostało odmalowane.
Drewniane podłogi zostały wycyklinowane, łazienka — kompletnie odnowiona.
Kuchnia pozostaje do własnej aranżacji — daje możliwość doboru mebli i wyposażenia zgodnie z własnym gustem.

BUDYNEK
Budynek z wielkiej płyty, zadbany, z domofonem, po remoncie klatek schodowych na parterze i piwnic.

LOKALIZACJA
Nieruchomość zlokalizowana jest przy ul. Huculskiej 3 na Mokotowie — w zielonej, spokojnej i dobrze skomunikowanej części dzielnicy. W okolicy znajduje się:
• Park Morskie Oko i zielone tereny idealne na spacery czy poranny jogging,
• Zielone skwery i tereny rekreacyjne,
• liczne sklepy, punkty usługowe oraz placówki edukacyjne i opieki zdrowotnej w zasięgu kilku minut spacerem,
• wygodny dostęp do głównej arterii — ul. Puławskiej, dzięki czemu bardzo łatwo dostać się w inne części miasta.


KOMUNIKACJA
Mieszkanie oferuje świetne połączenia komunikacyjne:
• Tramwaj — najbliższy przystanek „Morskie Oko” (ok. 4-5 minut pieszo), obsługują go linie m.in. 4, 10, 14, 18, 35, co daje szybki dojazd do centrum i wielu dzielnic Warszawy.
• Autobusy — przystanki w pobliżu (2-3 min pieszo), łączące z metrem i kluczowymi rejonami miasta.
• Metro — stacja linii M-1 (ok. 10-15 minut pieszo lub kilka minut autobusem), co gwarantuje sprawny dojazd do Centrum i innych dzielnic.

Dzięki temu mieszkanie świetnie łączy spokój i zieleń Mokotowa z szybkim dostępem do infrastruktury miejskiej.

DODATKOWE INFORMACJE
• Pełna własność z KW, grunty uregulowane.
• Możliwość zakupu na kredyt hipoteczny.
• Do mieszkania przynależy piwnica.


Zapraszam serdecznie na prezentację!
Nieprawidłowy adres E-mail