Kawalerka blisko lasu Jabłonna

Mieszkanie na sprzedaż
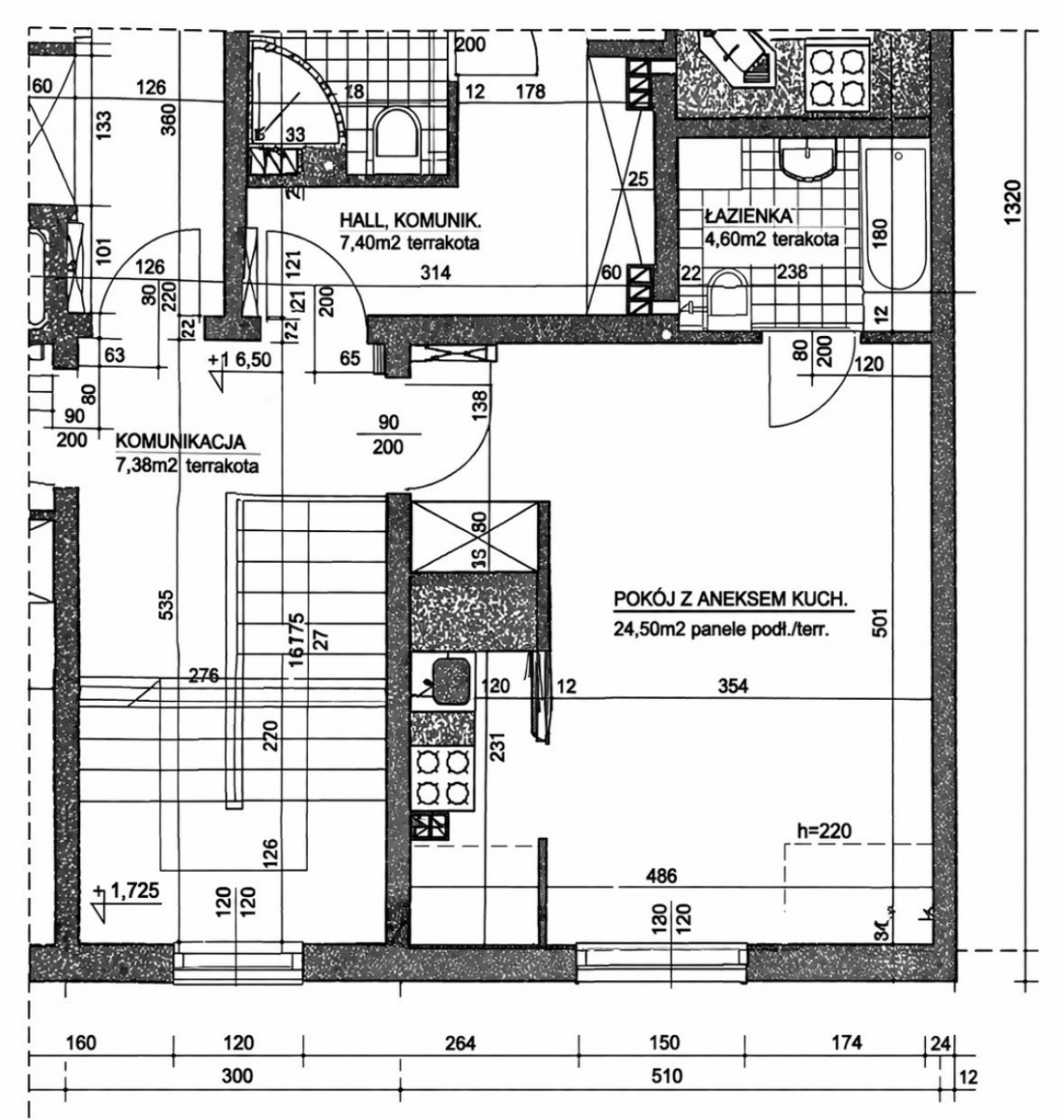
350 000,00 PLN , Pow. 28,50 m2
Drukuj ofertę
Drukuj ofertę
Typ nieruchomości:
Mieszkanie
Powierzchnia:
28,50 m2
Typ transakcji:
sprzedaż
Liczba pokoi:
1
Lokalizacja:
Jabłonna , Leśna
Rok budowy:
2000
Piętro:
2 na 2
Numer oferty:
34964548839
Cena za m2:
12 280,70 PLN
Na sprzedaż kawalerka o powierzchni 28,5 m² położona w Jabłonnie przy ul. Leśnej 21A.

Mieszkanie
Lokal o funkcjonalnym układzie, składający się z pokoju dziennego z aneksem kuchennym oraz łazienki z prysznicem. Ekspozycja wschodnia zapewnia dobre doświetlenie w godzinach porannych. Stan mieszkania do odświeżenia, co daje możliwość aranżacji według własnych potrzeb. Idealne jako pierwsze mieszkanie lub inwestycja pod wynajem.

Budynek
Mieszkanie znajduje się na 2 piętrze w 3-piętrowym budynku z 2000 roku. Budynek bez windy, w dobrym stanie technicznym, z kameralną zabudową.

Lokalizacja
Nieruchomość położona w spokojnej i zielonej części Jabłonny. W okolicy liczne tereny spacerowe, lasy oraz niska zabudowa mieszkaniowa. Lokalizacja zapewnia szybki dojazd do Warszawy - około 25-35 minut samochodem, w zależności od natężenia ruchu. W pobliżu dostępna komunikacja autobusowa z połączeniami do Warszawy oraz Legionowa.

Informacje dodatkowe
Mieszkanie idealne dla singla, pary lub jako inwestycja.
Forma własności: do uzupełnienia.
Czynsz: do uzupełnienia.

Kontakt
Zapraszam do kontaktu w celu uzyskania szczegółowych informacji oraz umówienia prezentacji.
Nieprawidłowy adres E-mail